Montažna Kuća Kovin

Montažna Kuća Kovin


 

Montažna kuća – MontingHome

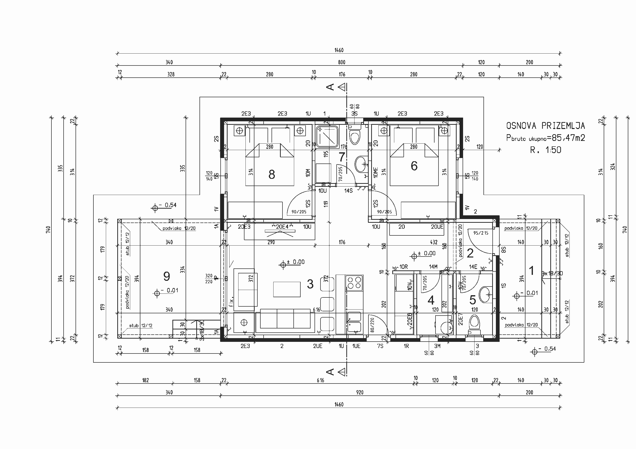
Bruto površina: 85,47 m2

Lokacija: Kovin

Godina gradnje: Mart 2022 

OPIS:

Prizemna Montažna kuća je odradjena u Visokom standardu sistemu gradnje u fazi „kljuc u ruke“. Na prizemnoj montažnoj kući je ugradjena PVC stolarija od „Inoutic“ arkada petokomornih profila i al. roletne sa dvoslojnim staklom i plise komarnicima. Crep Terran Madjarske proizvodnje, akrilna fasada, limarija plastificirana u crnoj boji. Drvo je zaštićeno „Bochemit“ Slovačkom zaštitom. Montaža i ugovoreni radovi na montažnoj kući su završeni za 45 dana.

 

Nacrt:

Montažna Kuća Čačak 2

Montažna Kuća Čačak 2


 

Montažna kuća – MontingHome

Bruto površina: 137,20 m2

Lokacija: Čačak

Godina gradnje: Jul 2024

OPIS:

Prizemna Montažna kuća je odradjena u Visokom standardu sistemu gradnje u „sivoj fazi“. Na prizemnoj montažnoj kući je ugradjena PVC stolarija u antracit od „Inoutic“ arkada šestokomornih profila sa dvoslojnim staklom i alu. roletnama sa pliše komarnicima. Crep Teran Renova Mađarske proizvodnje, akrilna fasada, limarija plastificirana u antracid boji. Drvo je zaštićeno „Bochemit“ Slovačkom zaštitom. Montaža i ugovoreni radovi na montažnoj kući su završeni za 20 dana.

 

Nacrt:

Montažna kuća – Novi Sad

Montažna kuća – Novi Sad


 

Montažna kuća – MontingHome

Bruto površina: 

Lokacija: Novi sad

Godina gradnje: Januar 2024

OPIS:

Prizemna Montažna kuća je proizvedena u „Visokom” standardu sistemu gradnje „Gruba Faza”. Na prizemnoj montažnoj kući je u Nastavku radova je ugradjena aluminijumska „Alumil” stolarija u crnoj boji sa alu. roletnama i troslojnim staklom. Crep Terran renova, akrilna fasada, limarija plastificirana u crnoj boji. Drvo je zaštićeno „Bochemit“ Slovačkom zaštitom. Proizvodnja i ugovoreni radovi na montažnoj kući su završeni za 20 dana. 

 

Nacrt:

Galerija:

Montažna kuća – Rumenka

Montažna kuća – Rumenka


 

Montažna kuća – MontingHome

Bruto površina: 117,59 m2

Lokacija: Rumenka

Godina gradnje: Septembar 2023 

OPIS:

Prizemna – kaskadna Montažna kuća je gradjena u „Visokom” standardu sistemu gradnje u fazi „ključ u ruke“. Na prizemnoj montažnoj kući je ugradjena PVC stolarija sa alu. roletnama sa dvoslojnim staklom. Crep Terran renova, akrilna fasada, limarija plastificirana u crnoj boji. Drvo je zaštićeno „Bochemit“ Slovačkom zaštitom. Montaža i ugovoreni radovi na montažnoj kući su završeni za 96 dana. 

 

Nacrt:

Galerija:

Montažna kuća Crna Gora – Berane

Montažna kuća Crna Gora – Berane


 

Montažna kuća – MontingHome

Bruto površina: 101,86 m2

Lokacija: Berane

Godina gradnje: Jul 2023 

OPIS:

Prizemna Montažna kuća je u “IZRADI” u Euro standardu sistemu gradnje u „sivoj fazi“. Na prizemnoj montažnoj kući je ugradjena PVC stolarija od „Inoutic“ arkada petokomornih profila i al. roletne sa troslojnim staklom. Crep Nexe Group proizvodnje, akrilna fasada, limarija plastificirana u belojboji. Drvo je zaštićeno „Bochemit“ Slovačkom zaštitom. Montaža i ugovoreni radovi na montažnoj kući su u toku, predvidjen rok završetka radova je 30 dana. 

 

Nacrt:

Montažna kuća Nova Pazova

Montažna kuća Nova Pazova


 

Montažna kuća – MontingHome

Bruto površina: 100,20 m2

Lokacija: Nova Pazova

Godina gradnje: Mart 2023 

OPIS:

Spratna Montažna kuća je odradjena u Euro standardu sistemu gradnje u „sivoj fazi“. Na spratnoj montažnoj kući je ugradjena PVC stolarija od „Inoutic“ arkada petokomornih profila i al. roletne sa dvoslojnim staklom. Crep Wienerberger, akrilna fasada, limarija plastificirana u beloj boji. Drvo je zaštićeno „Bochemit“ Slovačkom zaštitom. Montaža i ugovoreni radovi na montažnoj kući su završeni za 35 dana.

 

Nacrt:

Montažna kuća Francuska – Montpellier

Montažna kuća Francuska – Montpellier


 

Montažna kuća – MontingHome

Bruto površina: 168,80 m2

Lokacija: Montpellier

Godina gradnje: Jun 2023 godine

OPIS:

Prizemna Montažna kuća je odradjena u Mega Plus standardu sistemu gradnje u „sivoj fazi“. Na prizemnoj montažnoj kući je ugradjena PVC stolarija od „Rehau“ petokomornih profila i al. roletne sa troslojnim staklom. Crep Wienerberger, akrilna fasada, limarija plastificirana u beloj boji. Montaža i ugovoreni radovi na montažnoj kući su završeni za 20 dana.

 

Nacrt:

Montažna kuća 2022 – Čačak

Montažna kuća 2022 – Čačak


 

Montažna kuća – MontingHome

Bruto površina: 167,40 m2

Lokacija: Čačak

Godina gradnje: Mart 2022 

OPIS:

Prizemna Montažna kuća je odradjena u Visokom standardu sistemu gradnje u „sivoj fazi“. Na prizemnoj montažnoj kući je ugradjena PVC stolarija od „Inoutic“ arkada petokomornih profila i al. roletne sa dvoslojnim staklom i plise komarnicima. Crep Terran Madjarske proizvodnje, akrilna fasada, limarija plastificirana u crnoj boji. Drvo je zaštićeno „Bochemit“ Slovačkom zaštitom. Montaža i ugovoreni radovi na montažnoj kući su završeni za 25 dana.

 

Nacrt:

WordPress Video Lightbox